vendita
Appartamento
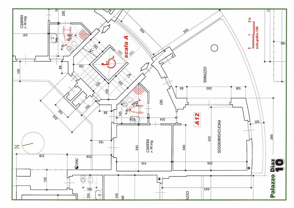
Chieri, Viale Armando Diaz 10
87 mq
2 Locali
1 Bagni
CLASSE ENERGETICA B
€ 190.000
DESCRIZIONE
Chieri centro, Viale A. Diaz, comodo alla stazione e a tutti i servizi, in stabile di recente costruzione, vendesi appartamento sito al primo piano con ascensore. L'unità immobiliare è composta da ingresso, soggiorno con angolo cottura, ampia camera da letto e bagno. Ampio terrazzo e balcone. Doppia esposizione. Cantina al piano interrato e possibilità box auto. Riscaldamento centralizzato a pavimento, con contabilizzatore autonomo dei consumi. Ape: classe B - Ape 99,86 kWh/m2.
Stampa scheda immobile
Condividi questo immobile
CARATTERISTICHE IMMOBILE
| Contratto | vendita |
| Categoria | Residenziale |
| Tipologia | Appartamento |
| Superficie | 87 mq |
| Numero Locali | 2 |
| Disponibilità | Libero a rogito |
| Stato di manutenzione | nuovo |
| Anno di Costruzione | |
| Classe Energetica | B |
| Riscaldamento | Centralizzato con contabilizzatore |
| Piano | 1 |
| Ascensore | Sì |
| Esposizione | 3 |
| Panoramico | No |
| Posto auto | Si |
| Numero Bagni | 1 |
| Cucina | Angolo cottura |
| Terrazzo | Si |
| Balcone | Si |
| Cantina | Si |
| Giardino | No |





















